Úvod
O projektu
Výběr bytu
Ceník
Lokalita
Financování
Galerie
Standardy
Kontakty
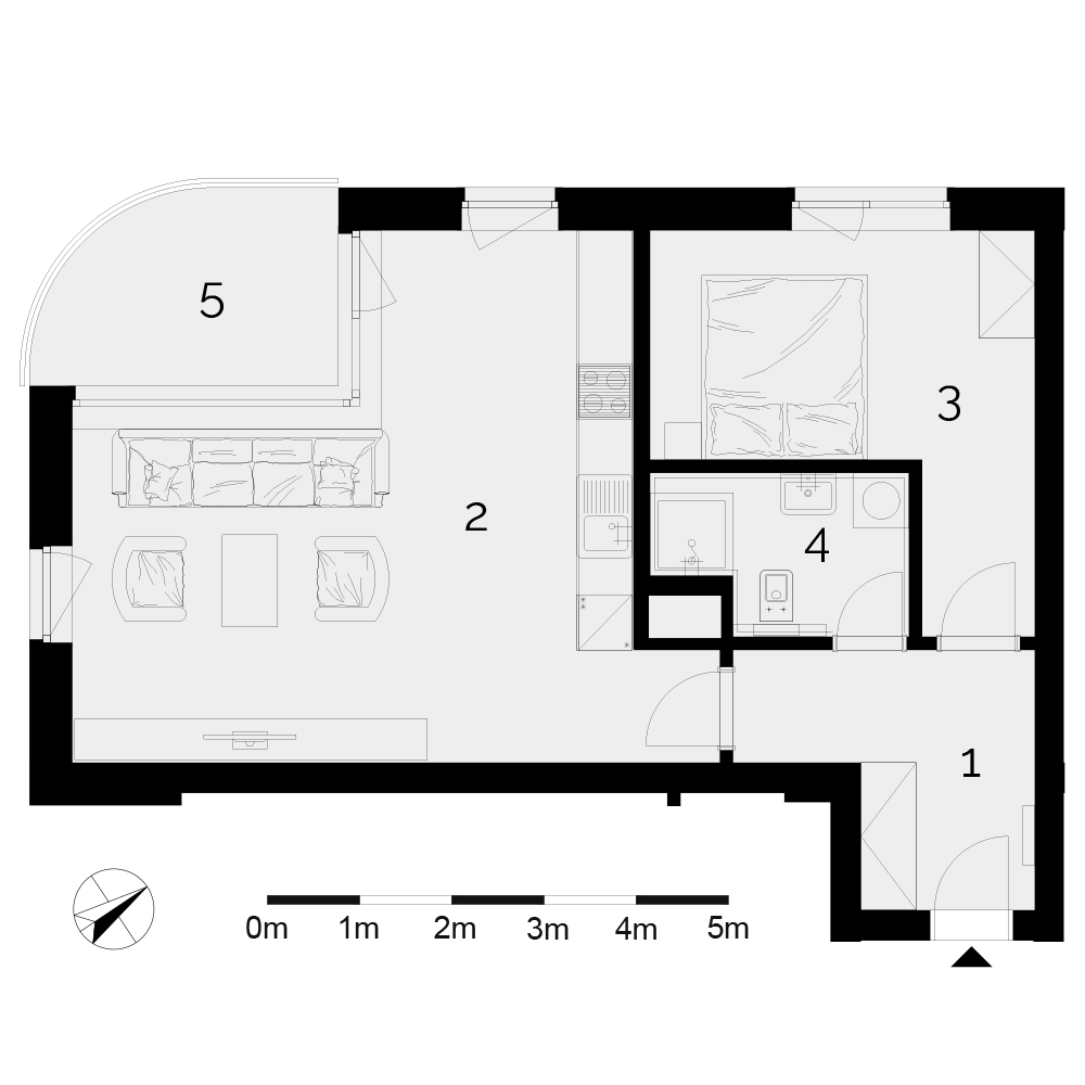
H1-402 - 4. NP - 2+kk - 63,64 m
2
prodáno
#
Místnost
m
2
1
Chodba
7,38
2
Obývací pokoj + kk
30,33
3
Ložnice
12,70
4
Koupelna + WC
4,39
5
Lodžie
6,36
zpět na seznam bytů
zpět na výběr bytu